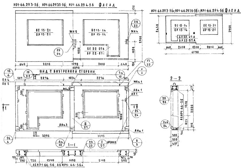
НР1-66.29.35-5бл

Чертеж изделия:
Характеристики изделия:
ПараметрЗначение
Длина6590 мм
Ширина350 мм
Высота2900 мм
Масса5850 кг
Нормативный документСерия 1.132-1
Цена:
Рассчитать стоимость

НР1-66.29.35-5бл    Наружная стеновая панель рядовая по Серии 1.132-1.